MUSEU NACIONAL DA RESISTÊNCIA E LIBERDADE


DATA 2018 LUGAR Peniche TIPO Museu, Concurso PROMOTOR DGPC

EQUIPA Filipa Figueira e Tiago Vieira (Arquitectos); Ani Engenharias (Engenheiros); Duarte Natário (Paisagista)


01 5 MB.jpg

 

Este projecto representa um grande desafio pelas características do edifício existente, para além da complexidade do programa de um museu. As decisões do projecto foram baseadas em duas abordagens fundamentais.

 

09 r1-cópia.jpg
08 COPIA.jpg
 

1 – A convicção de que neste tipo de contexto a arquitectura deve assumir um papel catalisador e contemporâneo, funcionando como uma referência, destacando a importância da sua autonomia formal sem perder a relação com o edifício existente, de acordo com princípios de continuidade e reversibilidade.

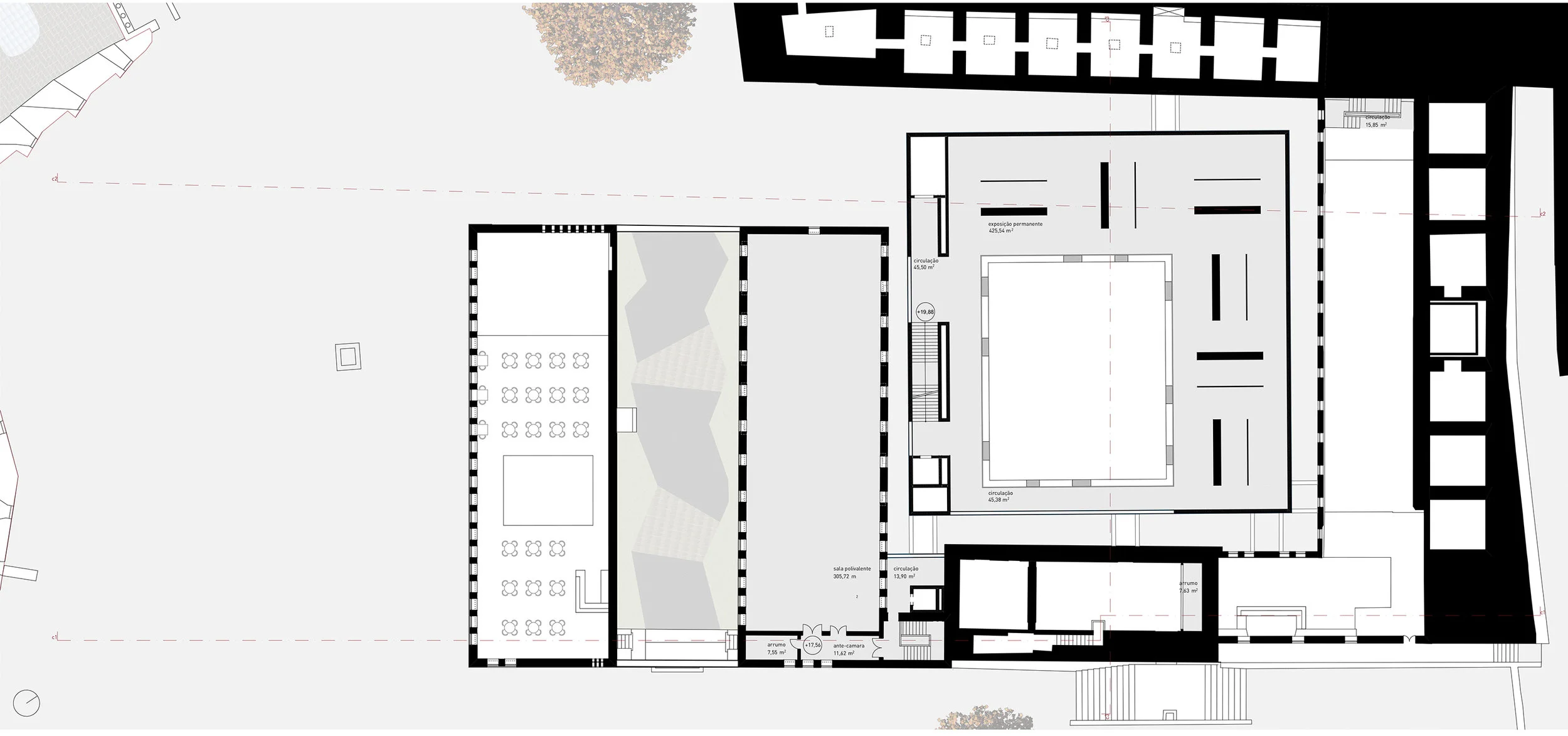
2 – A análise cuidada do programa, de forma a definir estratégias de organização e manutenção. A proposta é um gesto claro da relação entre o programa e os vários edifícios existentes através da introdução de um novo volume abstracto, com geometrias simples, para armazenar espaços de exposição permanentes e temporários. Este volume resolve a ligação entre os blocos b, c, f, cisterna e casamatas, onde se localizam vários espaços de exposição permanente. O novo bloco, identificado pela letra “L” simboliza a liberdade através da transparência.


02 5MB.jpg
03 5 MB.jpg
04 5 MB.jpg
06 5 MB.jpg
05 5 MB.jpg
07 5 MB.jpg
12 r4-cópia.jpg
11 r3-cópia.jpg
10 r2-cópia.jpg
13 IDENTIDADE GRAFICA-cópia.jpg